自動清污機安裝指南:
清污機安裝步驟:將清污機各段(上段柵體、中段柵體、下段柵體)及驅動裝置(傳動軸、軸承裝置、減速機、護罩等)準備好。
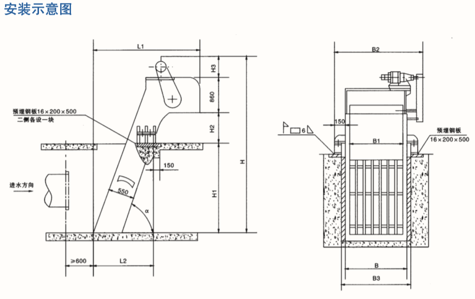
先將下段柵體(連同鏈條、齒耙)用汽車吊吊運到洞口處,通過在上游面對柵體施加一定水平力,將其與鉛垂面傾斜15°,沿軌道放下,通過清污機鎖定裝置鎖定。
將中段柵體(連同鏈條、齒耙)吊運到其洞口處,同樣將其傾斜15°,與下段柵體在邊梁聯接處對齊,螺栓聯接,并將牽引鏈條聯好,抽出鏈條鎖定銷,中段與下段柵體聯成一體,將下段鎖定打開,至中段鎖定處鎖定。
在支鉸固板和清污機上段邊梁上現場焊接支鉸。
將驅動裝置各部件吊運到清污機正確位置,螺栓聯接,接好牽引鏈條,裝上驅動鏈條,各自張緊到工作狀態(tài),裝好護罩。
現場調試清污機連續(xù)運行不低于8小時,及時處理存在的問題。
水電站清污機_全自動清污機_水電站清污機價格_水電站清污機廠家_河北水電站清污機生產廠家

